Stuudio Tallinn
Works
Public
Mixed-use
Intimate
Media
We
About
Other
Info
Facebook
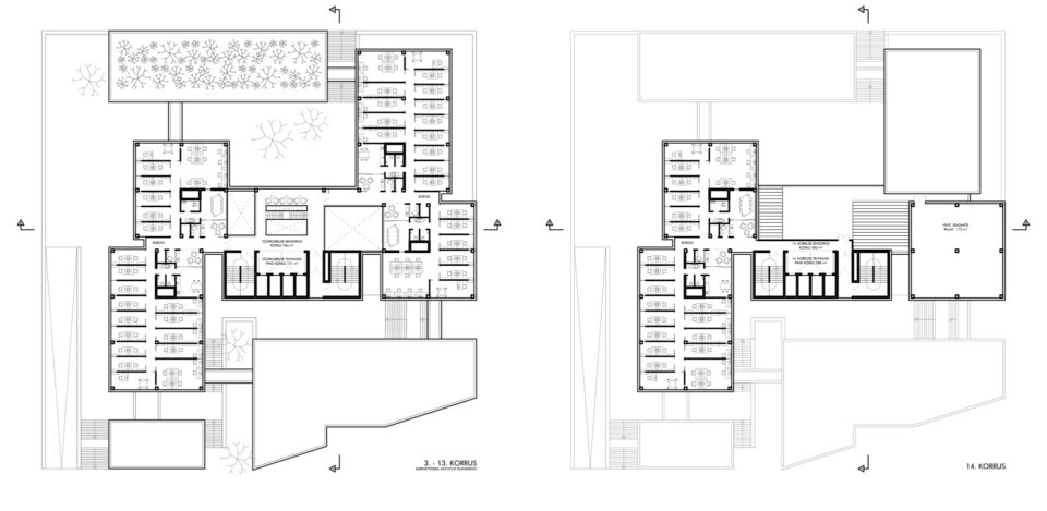
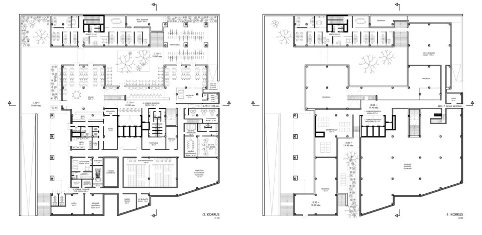
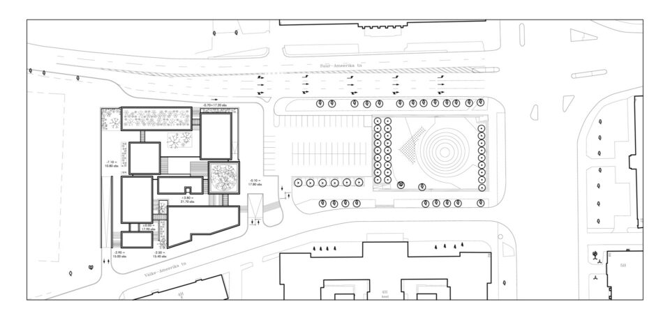
Superministeerium
/ Ministry
Aasta/year:
2015
Arhitekt/Architect:
Villem Tomiste
Koht/Location:
Tallinn
Tüüp/Type:
Võistlus / Competition